Время работы:
ПН-ПТ 8-21
СБ-ВС 10-16

 Замовити дзвінок
UA
Для проектувальників, монтажників і будівельників ексклюзивні умови на товари, роботи і послуги. Телефонуйте, домовимось!

Клапани протипожежні ВЕНТС КПДУ

Клапани протипожежні димові ВЕНТС серія КПДУ

Клапани протипожежні димові ВЕНТС серія ККДУ

Типорозмір клапану

Межа вогнестійкості, хв Макс. темп. Площа  перетину кв. м. Номін. напр. електроприв., Клас захисту Захист Вага, кг

400х400

180 600 0,12 24/230 II-III IP 54 10,75

500х500

180 600 0,2 24/230 II-III IP 54 11,6
600х600 180 600 0,31 24/230 II-III IP 54 12,45
700х700 180 600 0,43 24/230 II-III IP 54 12,5
800х800 180 600 0,55 24/230 II-III IP 54 13,4
900х900 180 600 0,71 24/230 II-III IP 54 15,2
1000х1000 180 600 0,9 24/230 II-III IP 54 14,3


Клапани протипожежні ВЕНТС (Vents) КПДУ – сфера застосування

Це обладнання успішно функціонує в системах захисту проти диму, яка застосовується в будівлях різного призначення, зокрема, в коридорах , тамбурах та інше. Протидимні універсальні клапани беруть участь у процесі видалення продуктів горіння, що виникають в результаті пожежі. Вони використовуються як димові для виведення диму в системі протидимного вентиляції, допомагаючи забезпечити евакуацію персоналу, відвідувачів з будинку, охопленого пожежею ( початкова стадія). Зазначимо, що клапан може витримувати надвисокі температури, такі як 600 градусів, при цьому межа його вогнестійкості – не менше 180 хвилин.

Клапан ВЕНТС умовні позначення

Переваги протипожежних клапанів КПДУ

  • Висока вогнестійкість: не менше 180 хв при темп-рі до 600 градусів
  • Високі експлуатаційні характеристики
  • Можливість додаткової комплектації: антивандальна, декоративна, решітки, грати димовидалення
  • Використання сертифікованих приводів Belimo
  • Широкий ряд модифікацій, що дозволяє замовнику підібрати оптимальний варіант
  • Наявність декількох лопаток, завдяки чому не збільшено
  • Розташування клемної коробки (виконання з електромагнітом) всередині корпусу

Конструкція клапанів ВЕНТС

Клапани Вентс випускаються в стінній або ж канальному виконанні в корпусі, виконаному їм оцинкованої сталі (1.5 милиметра товщина). Кількість його фланців (один або два) залежить від модифікації. За типом управління виділяють два типу клапана. Клапан з електромагнітом, розрахований на 24\220В при подачі напруги на електромагніт відкривається. Це відбувається за допомогою пружини. Потім включаться в роботу кінцевий вимикач, який розмикає ланцюг. Таким чином, відбувається відключення від мережі живлення. Клапан ВЕНТС конструкціяДодамо, що 10 секунд – це максимальний час живлення електромагніту. Для тестування працездатності пристрою передбачається спеціальна кнопка. Клапан, що має електропривод і поворотну пружину, працює за наступним принципом. Зазвичай заслінка знаходиться в закритому положенні (у разі, коли на електропривод подається напруга). Якщо ж надходить тривожний сигнал, електропривод знеструмлюється. Таким чином, за допомогою поворотної пружини клапан змінює відкрите положення на закрите. В такому випадку, розблокувати агрегат можна тільки шестигранним ключем вручну. Або ж подавши автоматично харчування на привід. Пристрій з електроприводом (розраховано на 24 і 230 Вольт відповідно), а також 2-х дротових управлінням. Змінити положення заслінки клапана з відкритого стану в закрите можна лише завдяки зовнішньому керуючому сигналу. Цей передає сигнал з одного приводу контакту на інший фазу напруги. Електропривод має контактну групу, яка подає сигнали щодо його підсумкових положень. Додамо, що управляти клапаном можна вручну, шестигранний ключ.

Додаткова комплектація димових клапанів КПДУ

Додатково, за бажанням, користувач можна замовити антивандальну сітку, яка допоможе захистити ваш пристрій від можливого втручання в його роботу. Якщо існують особливі вимоги до дизайну, то можливе використання декоративної алюмінієвої сітки. Вона являє собою ряд напрямних, які знаходяться під кутом 450 градусів. Обробка решітки проводиться за допомогою полімерного покриття, або ж з допомогою анодування. Це дає захист від несприятливого впливу середовища. При монтажі декоративної решітки необхідно поглибити клапан в стіну хоча б на 4 см від фланця до торця стіни. Вибираючи декоративну решітку слід врахувати габарити отвору стіни. Також додатковий аксесуар, який може вибрати користувач, це решітка димовидалення. Її застосування обумовлене у випадках, коли потрібно внутрішню порожнину клапана зробити невидимою з зовнішньої сторони. І при цьому немає особливих вимог до дизайнерського оформлення. Крім того, така решітка буде перешкоджати можливим спробам несанкціонованого доступу до обладнання, а також механізму. Решітка налічується ряд направляють потоку повітря (нерегульованих), які розташовані горизонтально, під кутом 45 градусів. Матеріал решітки – вуглецева сталь з спецпокрытием, оцинкована сталь, неіржавіюча сталь, алюміній. Монтується решітка до фланця клапана з використанням саморізів, отгибами назовні. Необхідність поглиблення агрегату при цьому немає.

Монтаж обладнання

монтаж гратДане обладнання не слід розташовувати в каналах приміщень, а також повітроводах будівель і споруд, які має ступінь пожежної вибухонебезпечності А і Б. Також не рекомендується застосування клапанів у витяжних системах (місцевих), які служать для виведення пожежовибухонебезпечних сумішей. Представлене обладнання не повинно використовуватися в агресивних середовищах. Середовище не може містити вибухонебезпечних речовин, липких, абразивних, волокнистих домішок. Клапани цієї серії слід розміщувати виключно в системах, що піддаються регулярному очищенні, що перешкоджає утворенню горючих відкладень. Монтувати клапан необхідно з використанням спеціальної конструкції. При цьому вогнестійкість ущільнення не повинна бути не менше, ніж у огороджувальної конструкції. Під час підготовки обладнання до твору монтажних робіт бажано розперти клапан розпірками (дерев'яними). Це дозволить запобігти можливість виникнення перекосів, порушення геометрії корпусу або скручування, що призведе до защемлення, і, отже, виходу пристрою з експлуатації. По завершенні обмурівки котла до димової шахті, а також остаточної фіксації клапана розпірки можна зняти. Перевірте, щоб стулка відкривалася без тертя, вільно. По завершенню цієї частини монтажних робіт слід заземлити агрегат, а потім приєднати електропровід або електромагніт (це залежить від моделі) до системи гасіння пожежі. Остання, завершальна стадія - тестування спрацювання клапана.

Технічне обслуговування клапанів КПДУ

Профілактичні роботи слід проводити кожні три місяці. Слід звернути увагу, є масло на осі заслінки. Додамо, що у разі дотримання правил експлуатації, зберігання, транспортування та монтажу, гарантується надійна робота обладнання протягом 18-ти місяців з дня початку використання.

Протипожежний клапан ВЕНТС (Vents) - купити, ціна

Якщо вам необхідна консультація щодо товару, представленого в цій категорії, скористайтеся консультацією наших фахівців. Придбати товар ви можете в режимі он-лайн, сплативши покупку з використанням електронних систем. Ми гарантуємо доставку в обумовлені терміни, висока якість товару та високоякісне обслуговування.

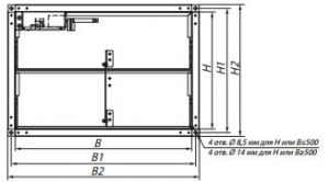
Габариты, клапаны VENTS

Клапан КПДУ габаритні розміри

Тип клапану

Розміри, мм
Н Н1 Н2 В В1 В2

400х400

400 430 460 400 460 470
500х500 500 530 560 500 560 570
600х600 600 630 660 600 660 670
700х700 700 730 760 700 760 770
800х800 800 830 860 800 860 870
900х900 900 930 960 900 960 970
1000х1000 1000 1030 1060 1000 1060 1070


Замовити дзвінок
Ім'я*
Телефон*
Час дзвінка*
Повідомлення
Код з картинки*
CAPTCHA

{cpt_news_short_list news_num='5' overridestyle=''}