Время работы:
ПН-ПТ 8-21
СБ-ВС 10-16

 Заказать звонок
RU
Для проектировщиков, монтажников и строителей эксклюзивные условия на товары, работы и услуги. Звоните, договоримся!

Клапаны противопожарные ВЕНТС КПДУ

Клапаны противопожарные дымовые ВЕНТС серия КПДУ

Клапаны противопожарные дымовые ВЕНТС серия КПДУ

Типоразмер клапана

Предел огнестойкости, мин. Макс. темп. Площ.  сечения, кв.м. Номин. напр. электроприв., В Класс защиты  Защита Вес, кг

400х400

180 600 0,12 24/230 II-III IP 54 10,75

500х500

180 600 0,2 24/230 II-III IP 54 11,6
600х600 180 600 0,31 24/230 II-III IP 54 12,45
700х700 180 600 0,43 24/230 II-III IP 54 12,5
800х800 180 600 0,55 24/230 II-III IP 54 13,4
900х900 180 600 0,71 24/230 II-III IP 54 15,2
1000х1000 180 600 0,9 24/230 II-III IP 54 14,3

Клапаны противопожарные ВЕНТС (Vents) КПДУ – сфера применения

Это оборудование успешно функционирует в системах защиты против дыма, которая применяется в зданиях различного назначения, в частности, в коридорах , тамбурах и другое. Противодымные универсальные клапаны участвуют в процессе удаления продуктов горения, возникающих в результате пожара. Они используются как дымовые для выведения дыма в системе противодымной вентиляции, помогая обеспечить эвакуацию персонала, посетителей из здания, охваченного пожаром ( начальная стадия). Отметим, что клапан может выдерживать сверхвысокие температуры, такие как 600 градусов, при этом предел его огнестойкости – не менее 180 минут.

Клапан ВЕНТС условные обозначения

 Преимущества клапанов противопожарных КПДУ

  • Высокая огнестойкость: не менее 180 мин  при темп-ре до 600 градусов
  • Высокие эксплуатационные характеристики
  • Возможность дополнительной комплектации: антивандальная, декоративная, решетки, решетка дымоудаления
  • Использование сертифицированных приводов Belimo
  • Широкий ряд модификаций, позволяющий заказчику подобрать оптимальный вариант
  • Наличие нескольких лопаток, благодаря чему не увеличено
  • Расположение клемной коробки (исполнение с электромагнитом) внутри корпуса

 Конструкция клапанов ВЕНТС

Клапаны Вентс выпускаются в стенном или же канальном исполнении в корпусе, выполненном им оцинкованной стали (1.5 милиметра толщина). Количество его фланцев (один или два) зависит от модификации.  По типу управления выделяют два типа клапана. Клапан с электромагнитом, рассчитанный на 24\220В при подаче напряжения на электромагнит открывается. Это происходит при помощи пружины. Затем включатся  в работу концевой выключатель, который размыкает цепь. Таким образом, происходит отключение от сети питания. Клапан ВЕНТС конструкцияДобавим, что 10 секунд – это максимальное время питания электромагнита. Для тестирования работоспособности устройства предусматривается специальная кнопка. Клапан, имеющий электропривод и возвратную пружину, работает по следующему принципу. Обычно заслонка находится в закрытом положении (в случае, когда на электропривод подается напряжение). Если же поступает тревожный сигнал, то электропривод обесточивается. Таким образом, с помощью возвратной пружины клапан в меняет открытое положение на закрытое.  В таком случае, разблокировать агрегат можно только шестигранным ключом вручную. Или же подав автоматически питание на привод. Устройство с электроприводом (рассчитано на 24 и 230 Вольт соответственно), а также 2-х проводным управлением. Изменить положение заслонки клапана из открытого положения в закрытое можно только благодаря внешнему управляющему сигналу. Этот сигнал передает  с одного контакта привода на другой  фазу напряжения. Электропривод имеет контактную группу, которая подает сигналы относительно его итоговых положений. Добавим, что управлять клапаном можно вручную, шестигранный ключ.

 Дополнительная комплектация дымовых клапанов КПДУ

 Дополнительно, по желанию, пользователь можно заказать антивандальную сетку, которая поможет защитить устройство от возможного вмешательства в его работу. Если существуют особые требования к дизайну, то возможно использование декоративной алюминиевой решетки. Она представляет собой ряд направляющих, которые находятся под углом 450 градусов. Обработка решетки производится при помощи полимерного покрытия, или же с помощью анодирования. Это дает защиту от неблагоприятного влияния среды. При монтаже декоративной решетки необходимо углубить клапан в стену хотя бы на 4 см от фланца до торца стены. Выбирая декоративную решетку следует учесть габариты проема стены. Также дополнительный аксессуар, который может выбрать пользователь, это решетка дымоудаления. Ее применение обусловлено в случаях, когда нужно внутреннюю полость клапана сделать невидимой с наружной стороны.  И при этом нет особых требований к дизайнерскому оформлению. Помимо того, такая решетка будет препятствовать возможным попыткам несанкционированного доступа к оборудованию, а также механизму. Решетка насчитывается ряд направляющих потока воздуха (нерегулируемых), которые расположены горизонтально, под углом 45 градусов. Материал решетки – углеродистая сталь со спецпокрытием, оцинкованная сталь, нержавейка, алюминий. Монтируется решетка к фланцу клапана с использованием саморезов, отгибами наружу. Необходимости углубления агрегата при этом нет.

 Монтаж оборудования

монтаж решеткиДанное оборудование не следует располагать в каналах помещений, а также воздуховодах зданий и сооружений, которые имеет степень пожарной взрывоопасности А и Б. Также не рекомендуется применение клапанов в вытяжных системах (местных), которые служат для выведения пожаровзрывоопасных смесей. Представленное оборудование не должно использоваться в агрессивных средах. Среда не может содержать взрывоопасных веществ, липких, абразивных, волокнистых примесей. Клапаны этой серии следует размещать исключительно в системах, подвергающихся регулярной очистке, что препятствует образованию горючих отложений. Монтировать клапан необходимо с использованием в специальной ограждающей конструкции. При этом огнестойкость уплотнения не должна быть не меньше, чем у ограждающей конструкции. Во время подготовки оборудования к произведению монтажных работ желательно распереть  клапан распорками (деревянными). Это позволит предотвратить возможность возникновения перекосов, нарушения геометрии корпуса или скручивания, что приведет к защемлению, и, следовательно, выходу устройства из эксплуатации. По завершении обмуровки агрегата в дымовой шахте, а также окончательной фиксации клапана распорки можно снять. Проверьте, чтобы створка открывалась без трения, свободно. По завершению этой части монтажных работ следует заземлить агрегат, а затем подсоединить электропровод или электромагнит (это зависит от модели) к системе тушения пожара. Последняя, завершающая стадия - тестирование срабатывания клапана.

Техническое обслуживание клапанов КПДУ

Профилактические работы следует производить каждые три месяца. Следует обратить внимание, есть ли масло на осях заслонки. Добавим, что в случае соблюдения правил эксплуатации, хранения, транспортировки и монтажа, гарантируется надежная работа оборудования в течение 18-ти месяцев со дня начала использования.

Противопожарный клапан ВЕНТС (Vents) - купить, цена

Если вам необходима консультация относительно товара, представленного в этой категории, воспользуйтесь консультацией наших специалистов. Приобрести товар вы можете в режиме он-лайн, оплатив покупку с использованием электронных систем. Мы гарантируем доставку в оговоренные сроки, высокое качество товара и высококачественное обслуживание.

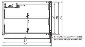
Габариты, клапаны VENTS

Клапан КПДУ габаритные размеры

Тип клапана

Размеры, мм
Н Н1 Н2 В В1 В2

400х400

400 430 460 400 460 470
500х500 500 530 560 500 560 570
600х600 600 630 660 600 660 670
700х700 700 730 760 700 760 770
800х800 800 830 860 800 860 870
900х900 900 930 960 900 960 970
1000х1000 1000 1030 1060 1000 1060 1070

Заказать звонок
Имя*
Телефон*
Время звонка*
Сообщение
Код с картинки*
CAPTCHA

{cpt_news_short_list news_num='5' overridestyle=''}