Время работы:
ПН-ПТ 8-21
СБ-ВС 10-16

 Замовити дзвінок
UA
Для проектувальників, монтажників і будівельників ексклюзивні умови на товари, роботи і послуги. Телефонуйте, домовимось!

Монтаж вентиляції в автомийці

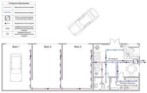
Монтаж системи вентиляції автомийки (дивіться також )

Вся складність і специфіка монтажу вентиляційної системи автомийки криється у тому, що в її приміщенні збираються краплі води і пар, змішані з чітсящімі і миючими засобами, вихлопні гази ав томобілів, а також бруд, яка видаляється за допомогою контактних або безконтактних методів з поверхонь автотранспорту.

проект автомийки
Для забезпечення повноцінного і достатнього повітрообміну в приміщенні автомийки використовується припливно-витяжна вентиляція, що очищає повітря. Завдяки правильно підібраному і ретельно прорахувати вентиляційному обладнанню високоякісний монтаж дозволить створити всі необхдімо умови, що забезпечують безперебійне функціонування автомийки. монтаж

Замовити дзвінок
Ім'я*
Телефон*
Час дзвінка*
Повідомлення
Код з картинки*
CAPTCHA

{cpt_news_short_list news_num='5' overridestyle=''}