Время работы:
ПН-ПТ 8-21
СБ-ВС 10-16

 Замовити дзвінок
UA
Для проектувальників, монтажників і будівельників ексклюзивні умови на товари, роботи і послуги. Телефонуйте, домовимось!

geoTHERM VWW 220/2 - VWW 460/2


geoTHERM VWW 220/2 - VWW 460/2

  табл

Найменування

VWW 220/2

VWW 300/2

VWW 380/2

VWW 460/2

Заказний номер

0010002801

0010002802

0010002803

0010002804

Технічні характеристики

Теплова потужність (для W10/W35 T5K)

кВт

29,9

41,6

52,6

63,6

Споживання електроенергії (для W10/W35 T5K)

кВт

5,8

7,8

9,8

12,4

Коефіцієнт перетворення COP (для W10/W35 T5K)

 

5,2

5,3

5,3

5,1

Теплова потужність (для W10/W55 T5K)

кВт

26,9

37,2

47,4

57,3

Споживання електроенергії (для W10/W55 T5K)

кВт

7,6

10,4

12,9

15,8

Коефіцієнт перетворення COP (для W10/W55 T5K)

 

3,5

3,6

3,6

3,6

Електроживлення блоку управління

В/Гц

230/50

230/50

230/50

230/50

Електроживлення компресора

В/ГЦ

400/50

400/50

400/50

400/50

Пусковий ток з обмежувачем

А

< 44

< 65

< 85

< 110

Об'ємна витрата в контурі опалення

л/ч

5099

6960

8700

10440

Внутр. опір контура опалення ТН, T=5K

мбар

126

152

218

303

Об'ємна витрата в контурі джерела тепла

л/ч

6417

8760

10800

13080

Температура подачі контура опалення (мін. / макс.)

оС

25/62

25/62

25/62

25/62

Допустима температура розсолу (мін. / макс.)

оС

4/20

4/20

4/20

4/20

Рівень шуму

дБ(А)

63

63

63

65

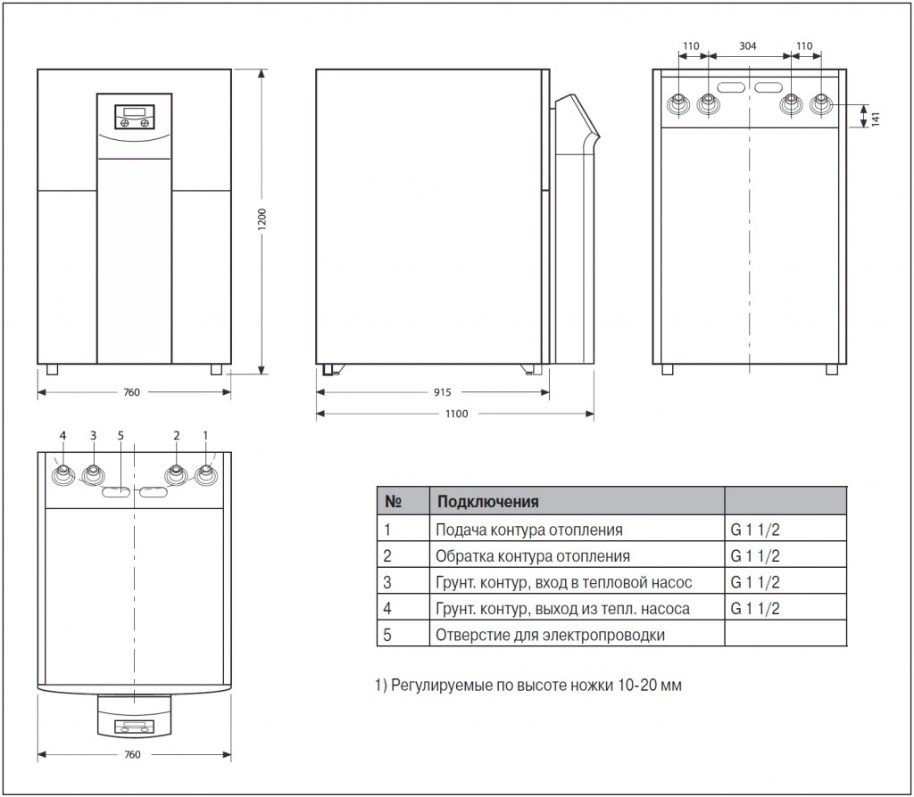
Розміри гідравлічних приєднань

G 1 1/2”

G 1 1/2”

G 1 1/2”

G 1 1/2”

Габаритні розміри

Висота

мм

1200

1200

1200

1200

Ширина

мм

760

760

760

760

Глибина

мм

1100

1100

1100

1100

Глибина (без лицьової панелі)

мм

900

900

900

900

Вага (без пакування)

кг

326

340

364

387

 

Теплові насоси Vaillant «вода-вода» geoTHERM VWW 220/2 - VWW 460/2 

вода-водаНезалежна система опалення Vaillant geoTHERM «вода-вода» великої потужності з відмінними технічними характеристиками і суттєвими для споживача вигодами (економічність, технологічність, ефективність, екологічність) буде незамінною не тільки для приватної садиби або котеджів, але і для багатоквартирних будинків і адміністративних будівель. Для великих площ застосовують два теплових насоса, підключених в каскад. Ці системи краще монтувати в споруджуваних будинках і реконструйованих будинках. 

У серію Vaillant geoTHERM VWW 220/2 - VWW 460/2 входять насоси для опалення та підігріву води, що мають потужності 30, 42, 53, 64 кВт і з температурою подачі +62 o с. Теплові агрегати використовують низькопотенційне тепло грунтової води, водойми або артезіанського джерела. Приготування гарячої води здійснюється при підключенні до насоса накопичувального бойлера непрямого нагріву VIH RW 300, виготовленого спеціально для теплових насосів. Також можна підключити станцію для підігріву води VPM 20/25W або VPM 30/35W. Таким чином, ви створите високотехнологічну та якісну систему ГВП. Стежити за роботою агрегату і всієї теплової системи допоможе погодозалежний регулятор. 

Система складається з теплового насоса, глибинного насоса (або насосної станції), подає свердловини і дренажної свердловини, через яку відпрацьована вода виводиться назад в грунт. 

Особливості теплових насосів geoTHERM VWW 220/2 - VWW 460/2 

• У внутрішній блок вбудований холодильний контур. Проміжний контур з незамерзаючою рідиною всередині призначений для зв'язку зовнішнього і внутрішнього контурів.
• Конструкція зовнішнього блоку полегшена і надійна.
• Допустима температура зовнішнього повітря від -20°С до +20°С.
• Трубопроводи можна приєднувати зверху або ззаду.
• Насос сумісний з різними водонагрівачами.
• Тиха робота внутрішнього і зовнішнього блоків можлива завдяки багатошаровій шумоізоляції.
• Використання скролл-компресора допомагає досягти високого коефіцієнта перетворення (COP).
• Система vrnetDIALOG - дистанційна діагностика і управління.регулятор
• Завдяки компактному виконанню та концепції LiftMounting тепловий насос монтується швидко.
• Обладнання ефективними циркуляційними насосами.
• Полегшує управління агрегатом система Vaillant "поверни і натисни".
• Насос вбудований лічильник, який підраховує отриману енергію навколишнього середовища.
• Концепція Lift-MountingConcept гарантує легку транспортування.
• Високий захист навколишнього середовища за рахунок використання відновлюваних джерел енергії (чистої енергії природних ресурсів).
• Високий побутовий комфорт для користувачів з-за ідеальної комбінації опалення та гарячого водопостачання. 

Оснащення теплових насосів geoTHERM VWW 220/2 - VWW 460/2

• Погодозалежний регулятор з функціями підрахунку і відображення на екрані з підсвічуванням кількості отриманої теплоти навколишнього середовища.
• Вбудована функція для управління свердловинних (занурювальним) насосом.
• Система обладнана обмежувачем пускового струму.
• Система ProE - штекерні з'єднання.
• Для підключення насоса передбачений електричний роз'єм.
• Оснащення датчиками температури буферної ємності, зовнішнього повітря, подаючої магістралі, водонагрівача.
• В контур опалення вбудований циркуляційний насос.
• Для нагріву бойлера вбудований триходовий пріоритетний клапан.
• Додатковий електронагрівач на 6 кВт.
• Віброзахисні еластичні вставки.
• Насос вбудований обмежувач пускових струмів.

схема

Замовити дзвінок
Ім'я*
Телефон*
Час дзвінка*
Повідомлення
Код з картинки*
CAPTCHA

{cpt_news_short_list news_num='5' overridestyle=''}