Будьте в курсе!
Новости, обзоры и акции
Новости, обзоры и акции
|
|
|
|
|
|
(0)
|
Гибкая вставка Aerostar SFI 100-50 купить, цена, характеристики, фото
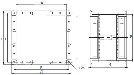
Предназначение гибких вставок - предотвращение передачи вибрации, которая идет от агрегата вентиляционной системы к воздуховоду. Их использование в вентиляционных установках, которые работают с температурами от -40 до +80.
|
А,мм |
Б,мм |
В,мм |
Г,мм |
Д,мм |
Е, мм |
Ж,мм |
И,мм |
| 1000 |
500 |
1030 |
530 |
1060 |
560 |
13 |
158 |
|
|
|
|
|
|
(0)
|
|
|
|
|
|
|
(0)
|
|
|
|
|
|
|
(0)
|
|
|
|
|
|
|
(0)
|
Новости, обзоры и акции
