Новости, обзоры и акции
Новости, обзоры и акции
|
|
|
|
|
|
(0)
|
Рекуператор 2VV используется для обслуживания жилых частных и многоквартирных объектов. Способствует сохранению тепла и воздушного теплообмена. При эксплуатации оборудования существенно снижается потребление ресурсов на отопление помещения, а также уменьшается количество сквозняков.
Установка производится в жилых частных и многоквартирных домах. Для эксплуатации необходимо помещений с сухим воздухом. Температурный рабочий режим может варьироваться от +5 до +40 градусов. Не разрешается использовать на предприятиях, производствах и промышленных кухнях.
Купить рекуператор в Украине можно на официальном сайте компании. После оставления заявки с вами свяжется консультант. Все монтажные и ремонтные работы климатического оборудования производят профессионалы.
Остальные модели серии по ссылке
|
Рекуперационная установка 2VV HRV15AC |
||
|
|
||
|
Характеристики |
Величина |
|
|
Максимальный воздушный поток м3/ч |
185 |
|
|
Класс фильтра подводящего канала |
G5+M2 |
|
|
Выпускной класс фильтра |
G4 |
|
|
Фаза шт. |
1 |
|
|
Напряжение В |
50 | |
|
Частота Гц |
230 |
|
| Мощность вентиляторов Вт |
105 |
|
| Мощность предварительного нагревателя Вт |
1 |
|
| Вес кг |
17.4 |
|
| Диаметр трубопровода мм |
160 |
|
| Высота устройства мм |
270 |
|
| Ширина устройства мм |
555 |
|
| Длина устройства мм |
1000 |
|
|
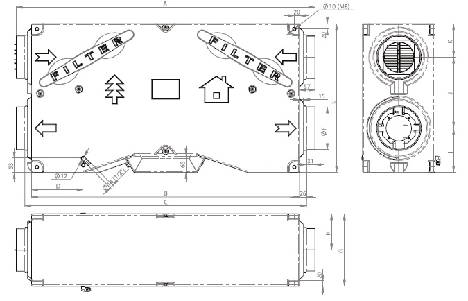
Габаритные размеры, мм |
|||||||||||||||||||||||
| А | В | С |
D |
E |
F |
G |
H
|
I |
J | K | |||||||||||||
| 1114 | 1000 | 1051 | 193 | 555 | 159 | 270 | 135 | 165 | 265 | 125 | |||||||||||||
|
|
|
|
|
|
(0)
|
|
|
|
|
|
|
(0)
|
|
|
|
|
|
|
(0)
|
Новости, обзоры и акции

