Новости, обзоры и акции
Новости, обзоры и акции
|
|
|
|
|
|
(0)
|
Служит для вентиляции воздуха в помещениях, в которых скапливается значительное количество влаги. Устанавливается в бассейнах и аквапарках - как небольших, так и в крупных помещениях. Данная установка является коррозийно-устойчивой, выполняется из нержавеющих материалов.
Характеристики:
PoolStar-13 применяется для вентиляции помещений с интенсивным выделением влаги. Она может быть использована в аквапарках и бассейнах разных размеров - от небольших частных бассейнов до спортивных комплексов. Установка имеет широкую линейку моделей, а также модификаций. Проявляет устойчивость по отношению к коррозии, выполняется из нержавеющих материалов. Утилизация тепла в осуществляется двухступенчатым способом, что значительно экономит энергоресурсы. Автоматика Pool Star-4 обеспечивает оптимальный микроклимат в помещении, где она установлена.
Установки PoolStar-13 дополняются комплектом автоматики, который проектируется для создания комфортного микроклимата в бассейне или аквапарке. Немаловажно, что система автоматики может быть легко можно интегрирована в единую систему диспетчеризации и управления . Секция нагрева дает возможность с высокой и быстрой точностью выработать необходимую температуру воздуха. Класс очистки фильтров приточно-вытяжного воздуха от G4. Вентиляторы с прямым приводом дают возможность достигать высокой энергоэффективности. Благодаря комплекту автоматики влага в помещении бассейна не конденсируется.
Характеристики вентилятора установки |
|
|
Расход воздуха |
13000 куб.м. в час |
|
Потери давления сети |
400 Па |
|
Обороты вентилятора, приток/вытяжка |
1555/1527 об\мин |
|
Мощность вентилятора |
5.33/506 кВт |
|
Рабочая частота, приток/вытяжка |
53/52 Гц |
|
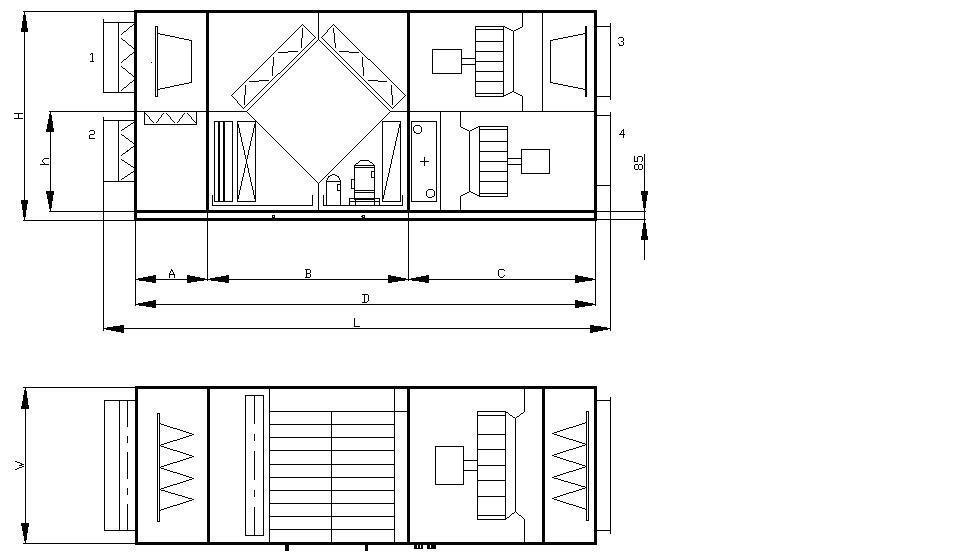
A |
B |
C |
D |
h |
H |
W |
L |
|
729 |
2000 |
1663 |
4392 |
800 |
1685 |
1300 |
4882 |
|
|
|
|
|
|
(0)
|
|
|
|
|
|
|
(0)
|
|
|
|
|
|
|
(0)
|
|
|
|
|
|
|
(0)
|
Новости, обзоры и акции
